Bowback House . Milton Keynes MK9

Bowback House . Milton Keynes MK9

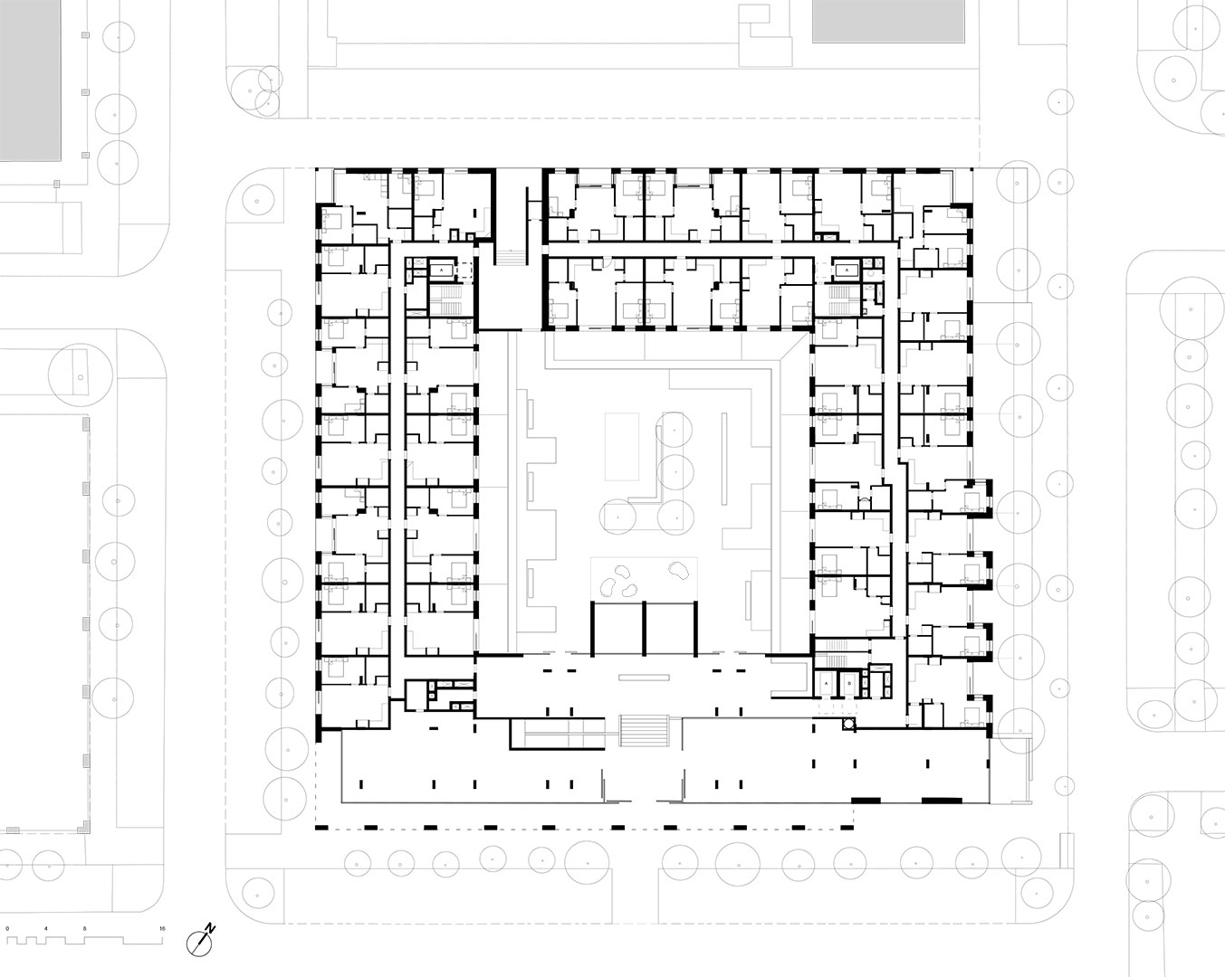
 A major 306 unit Build-to-Rent residential scheme in the centre of Milton Keynes that sets a new urban scale in responding to its important corner location at the junction of Silbury Boulevard and Witan Gate.

 The approved building, that replaces an existing 3 storey office, rises in a series of steps from 5 to 14 storeys creating extensive landscaped resident amenity terraces with fine views over Milton Keynes and excellent solar access.

The building elevations are articulated with brick and GRC detailing that incorporate MK classic infrastructure and refer to the modernist origins of the city.

Client:
Cannon Capital Developments Ltd

Status:
Planning 2020

52°04’30.9″N

1809-Ground floor plan-02

Image 6 of 7